VINHOMES NEW CENTER – TỌA ĐỘ TRUNG TÂM, XỨNG TẦM ĐẲNG CẤP

Vinhomes New Center là khu chung cư cao cấp nằm trong khu đô mới Hàm Nghi, thành phố Hà Tĩnh, do tập đoàn Vingroup làm chủ đầu tư. Sở hữu kiến trúc hiện đại, quần thể biệt lập cùng hệ thống tiện ích cảnh quan “có một không hai”, Vinhomes Hà Tĩnh sẽ mang đến những trải nghiệm sống tuyệt vời nhất tới mọi người dân thành phố miền Trung xinh đẹp này.

TỔNG QUAN DỰ ÁN

Chủ đầu tư: Tập Đoàn Vingroup – Công Ty CP

Tổng diện tích đất dự án: 1.95 ha

Mật độ xây dựng: 23.6%

Quy mô phát triển: 2 tòa căn hộ

Loại hình phát triển: Chung cư

Thời điểm khởi công: Năm 2018

Thời điểm bàn giao: Tháng 8/2019

VỊ TRÍ DỰ ÁN

Vinhomes New Center tọa lạc trên mặt đường Hàm Nghi, phường Thạch Linh, thành phố Hà Tĩnh.

Dự án kết nối trực tiếp với quốc lộ 1A và các cơ quan hành chính trọng yếu, bệnh viện, trường học… đồng thời nằm trên cùng tuyến đường với trung tâm thương mại Vincom Plaza sầm uất.

Cùng với các dự án đã được Vingroup hoàn thiện từ trước đó như khách sạn Vinpearl Discovery, Vinpearl City Hotel, công viên nước Vinpearl Land… Vinhomes New Center cũng sẽ là mảnh ghép quan trọng, góp phần làm thay đổi diện mạo của thành phố Hà Tĩnh.

TIỆN ÍCH ĐA DẠNG, DỊCH VỤ VƯỢT TRỘI

Với sứ mệnh mang đến một khu căn hộ văn minh, hiện đại ngay giữa trung tâm thành phố Hà Tĩnh, Vinhomes New Center được kiến tạo với hàng loạt các tiện ích đẳng cấp, nổi bật như quảng trường Horizon Square, bể bơi ngoài trời, sân tennis, sân cầu lông, sân tập dưỡng sinh dành cho người cao tuổi, sân chơi sáng tạo dành cho trẻ nhỏ, vườn nướng BBQ…

Tại chung cư Vinhomes Hà Tĩnh, bạn sẽ tìm thấy sự bình yên trong tâm hồn khi sau mỗi ngày làm việc mệt mỏi, có thể trở về căn nhà thân thương, hòa mình trong làn nước mát lạnh của bể bơi ngoài trời, dạo bước thảnh thơi bên các khu vườn cây xanh hay cùng ông bà, con thơ quây quần bên bếp nướng…

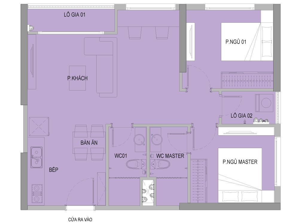
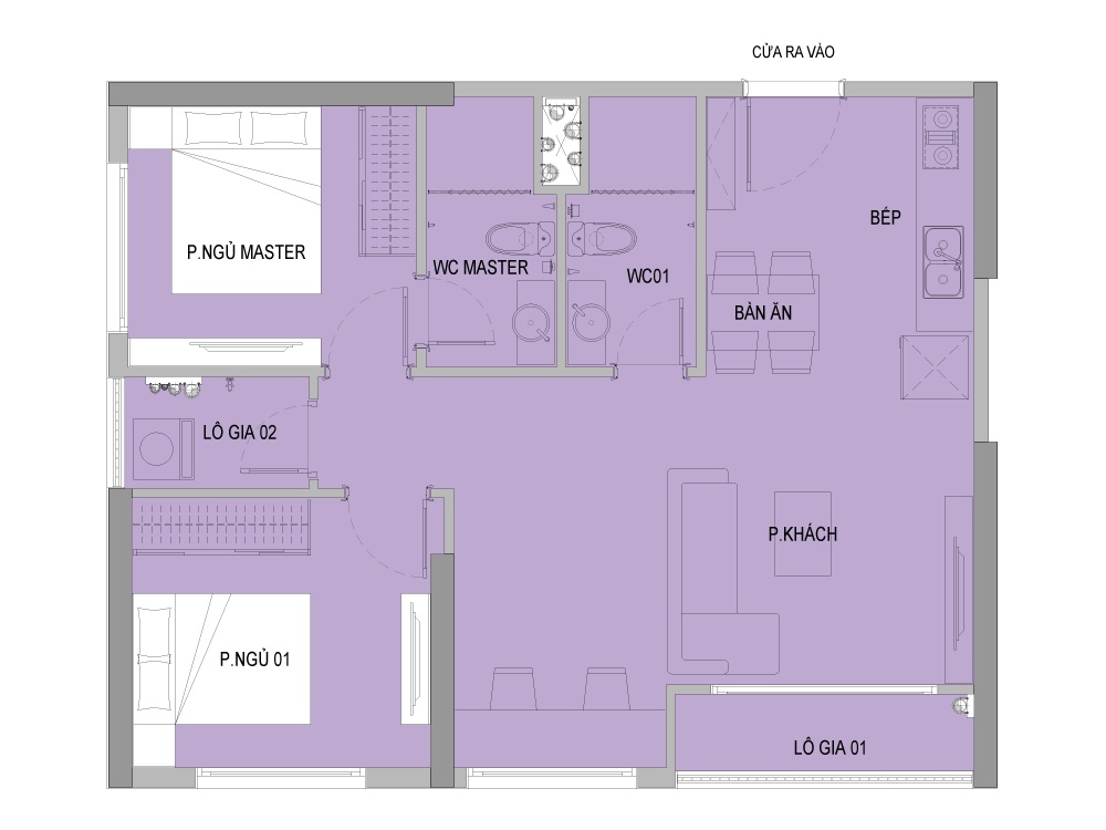
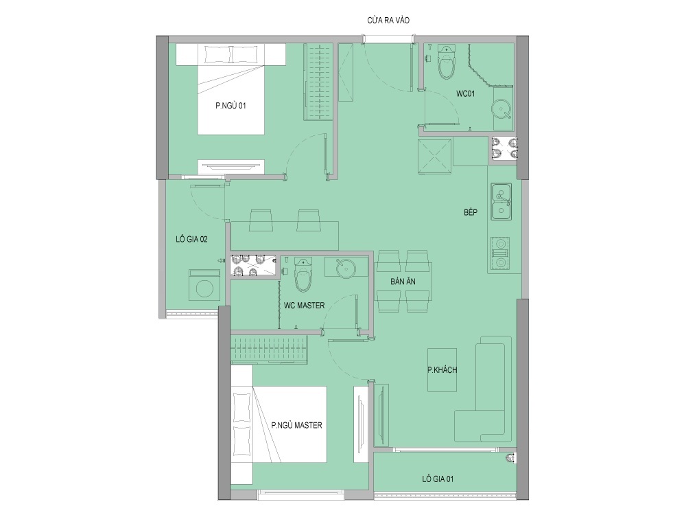
CĂN HỘ CHUNG CƯ

Căn hộ chung cư Vinhomes New Center được thiết kế với diện tích từ 26.97 – 72.27 m2, chia thành các loại: studio và 1 – 3 phòng ngủ.

Mặc dù diện tích không quá lớn, nhưng với cách bố trí khoa học, tất cả các không gian nhỏ đều được tận dụng triệt để, giúp tối đa hóa công năng sử dụng của căn hộ.

Với giá bán hấp dẫn, khoảng 16.5 – 20 Triệu/m2, tương đương chỉ từ 450 Triệu, căn hộ Vinhomes Hà Tĩnh sẽ là lựa chọn lý tưởng cho những người độc thân, các cặp vợ chồng trẻ muốn trải nghiệm cuộc sống văn minh, hiện đại ngay giữa trung tâm thành phố sôi động.