Hà Đô Charm Villas là dự án khu đô thị sinh thái đẳng cấp của chủ đầu tư Tập đoàn Hà Đô tọa lạc tại Km 11 Đại Lộ Thăng Long, xã An Thượng, huyện Hoài Đức, TP Hà Nội. Chỉ cần bước chân đến dự án này là khách hàng sẽ cảm nhận ngay được sự hiện đại, tiện nghi và hơi thở thiên nhiên tươi mát.
Với giá bán hợp lý, liền kề biệt thự Hà Đô Charm Villas rất đáng để đầu tư đón đầu hạ tầng khi Hoài Đức sẽ lên Quận vào năm 2020. Các căn biệt thự, liền kề có giá từ 4 Tỷ/Căn bao gồm cả tiền xây dựng khá rẻ xo với các dự án khu vực xung quanh.

Phối cảnh dự án Hà Đô Charm Villas
TỔNG QUAN DỰ ÁN HÀ ĐÔ CHARM VILLAS
- Tên dự án : Hado Charm Villas
- Vị trí dự án : Km 11 Đại Lộ Thăng Long, xã An Thượng, huyện Hoài Đức, TP Hà Nội.
- Chủ đầu tư : Tập đoàn Hà Đô
- Đơn vị thiết kế : Surbana International Consultants Pte. Ltd
- Đơn vị bán hàng :
- Loại hình phát triển: Biệt thự đơn lập, biệt thự song lập, nhà phố liền kề.
- Quy mô dự án hơn 30 ha với 528 căn thấp tầng
- Mật độ xây dựng thấp chỉ 18%
- Bàn giao dự kiến: Qúy IV/2020
- Hình thức sở hữu :Sổ đỏ lâu dài.
VỊ TRÍ DỰ ÁN HÀ ĐÔ CHARM VILLAS
Dự án Hà Đô Charm Villas toạ lạc tại vị trí km 11 đường Đại Lộ Thăng Long, thuộc địa phận xã An Thượng và An Khánh, Huyện Hoài Đức, Tp.Hà Nội. Hà Đô Charm Villas nằm trên trục đại lộ Thăng Long, sở hữu toạ độ kết nối hoàn hảo trên mạng lưới giao thông của Thủ đô , hội tụ 3 yếu tố sáng của vị trí trong bất động sản: Kết nối trung tâm thuận tiện, kết nối vùng nhanh chóng, & kết nối tương lai đầy tiềm năng.

Vị trí dự án Hà Đô Charm Villas An Khánh
Dự án Hado Charm Villas tọa lạc tại tâm điểm của 02 khu Trung tâm Kinh tế – Chính trị lớn nhất miền Bắc phía Tây Hà Nội (khu vực Mỹ Đình, KeangNam với hơn 100 tòa văn phòng đã hiện hữu) và KCN Hòa Lạc (80 nhà máy tập đoàn, 9 trường Đại học, 13 bộ ban ngành, tổ hợp 5 BV TW).
Hado Charm Villas nằm sát Đại lộ Thăng Long – Đại lộ hiện đại nhất Việt Nam – Vị trí Kim Cương đón đầu xu hướng phát triển thành phố và đường liên khu 8 nối Đan Phượng với Hà Đông rộng 50m. Ngay sát bên cạnh là khu đô thị Nam An Khánh, Vinhomes Thăng Long đã hoàn thiện hạ tầng.
- 10 phút (7km) kết nối tới Đại siêu thị Aeon Mall Hà Đông
- 7 phút (3,5km) kết nối tới và Trung tâm thương mại Vincom Mega Mall tại Vinhomes Smart City
- 5 phút tới Trường Quốc tế Việt Mỹ
- 10 phút tới Trường Quốc tế Nhật Bản,
- 15 phút tới Trường Arm, TH School,
- 5 phút kết nối Bệnh viện Vinme
- 5 phút (3km) kết nối tới Khu du lịch Thiên đường Bảo Sơn, Sân Golf Đồng Mô,…
- Kết nối nhanh chóng đến Sân bay Hoà Lạc & cửa ngõ cao tốc Hoà Lạc – Hoà Bình.
TIỆN ÍCH DỰ ÁN HÀ ĐÔ CHARM VILLAS
Hà Đô Charm Villas thừa hưởng các tiện ích ngoại khu như trung tâm thương mại AEON Mall Hà Đông, khu vui chơi giải trí Thiên đường Bảo Sơn, các trung tâm thương mại của Vincom, Bệnh viện Quốc tế Hà Đông…sẽ nâng cao chất lượng sống và tăng giá trị bất động sản tại đây.
Điểm nhấn của khu đô thị dự án Hado Charm Villas chính là hồ trung tâm uốn lượn như Rồng. Cảnh quan thiên nhiên, tiện ích và nhà ở được sắp xếp dọc theo hồ. Vì thế cư dân sẽ có thể cảm nhận được hơi thở thiên nhiên trong chính ngôi nhà của mình.
Hà Đô Charm Villas chứa đựng tâm huyết cũng như tầm nhìn xa của chủ đầu tư Hà Đô Group. Dự án được phát triển với mô hình phức hợp hiện đại với hệ thống tiện ích khép kín và đồng bộ nâng cao chất lượng sống.
- Bể bơi ngoài trời
- Hệ Thống trường liên cấp
- Sân thể thao, tennis, bóng rổ
- Công viên và hồ chạy dọc dự án
- Khu Clubhouse, Nhà sinh hoạt cộng đồng
- Khu phố thương mại sầm uất tập trung các nhà hàng, cafe, cửa hàng tiện lợi.





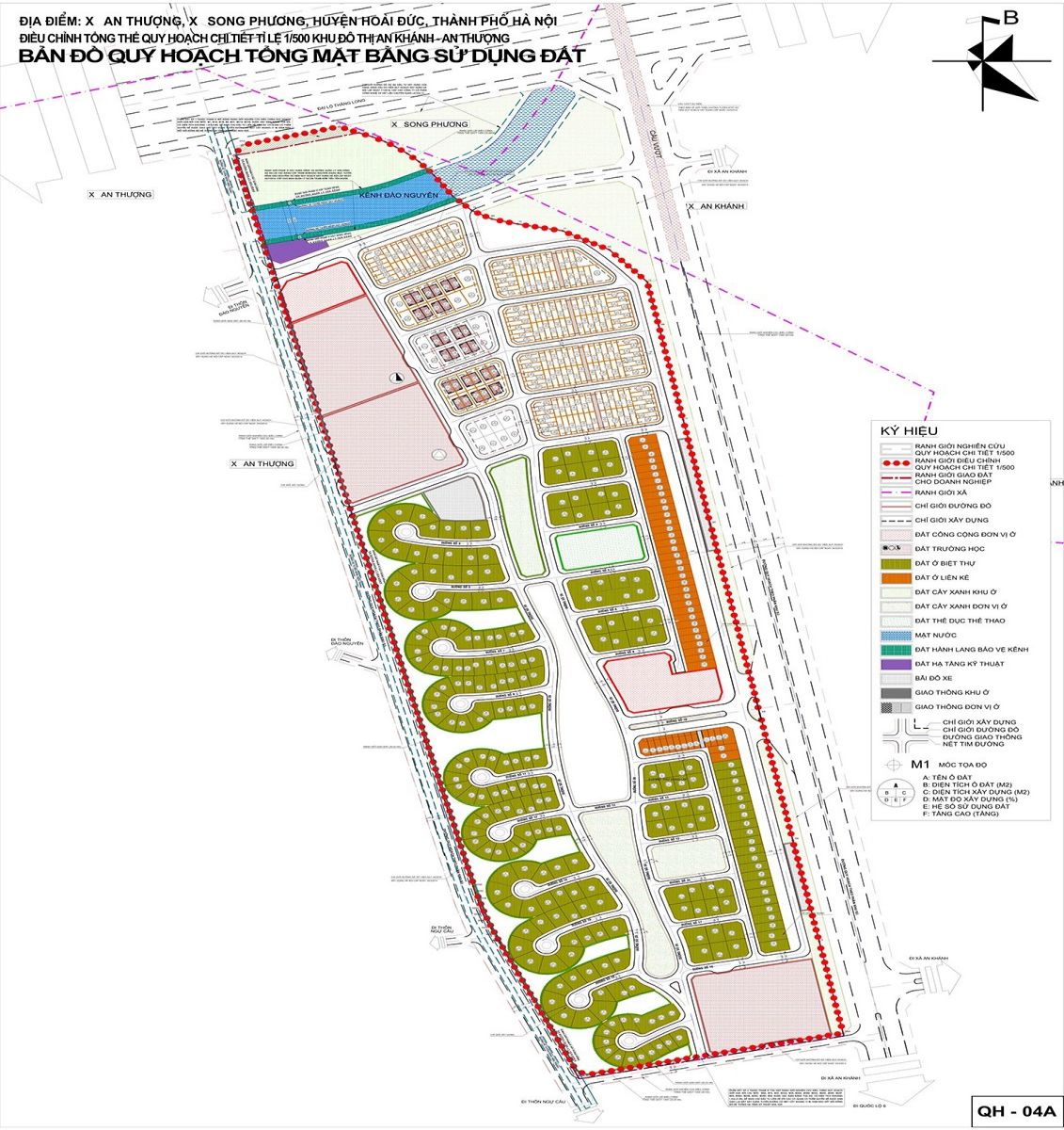
MẶT BẰNG DỰ ÁN HÀ ĐÔ CHARM VILLAS
Khu đô thị Hà Đô Charm Villas có quy mô 30 ha với mật độ xây dựng chỉ 16%, với các loại hình sản phẩm biệt thự liền kề có diện tích đất từ 250 – 500m2 với thiết kế hiện đại, gần gũi với thiên nhiên, các căn nhà liền kề có diện tích đất 200 m2 với đường phía trước và sau nhà, vừa sinh hoạt gia đình lại vừa có thể kinh doanh.

Hà Đô Charm Villas được đánh giá là có thiết kế thực sự hoàn hảo. Không chỉ có những sản phẩm nhà ở thấp tầng được thiết kế đẹp, đẳng cấp. Dự án còn có hệ thống cảnh quan vô cùng đẹp mắt.

Mặt bằng dự án Hado Charm Villas
Biệt thự Hà Đô Charm Villas gồm những căn có diện tích từ 200m2 – 350m2 được xây dựng 3 tầng. Toàn bộ hạ tầng kỹ thuật được thiết kế và xây dựng ngầm, thông thoáng và an toàn, có Gara để xe hơi, tiện nghi đầy đủ.
Biệt thự Hado Charm Villas có tổng số 201 Căn:
- Diện tích: Từ 200 – 350m2
- Diện tích xây dựng: 289 – 384m2
- Mật độ xây dựng: 50%, Xây 3 tầng
- Kích thước: 10 x 20m, 12 x 20m, 15 X 20m.
- Thiết kế: Tầng 1 phòng Khách, Bếp
- Mức độ hoàn thiện : Xây dựng hoàn thiện mặt ngoài, bàn giao thô bên trong


Các con đường đều có cây xanh trồng dọc theo vỉa hè dành cho người đi bộ. Ở giữa khu biệt thự là công viên được bố trí trồng những cây có tàng che lớn tạo bóng mát cho nơi sinh hoạt cộng đồng.
Những căn liền kề Hà Đô Charm Villas được thiết kế kiến trúc hiện đại, đồng bộ, Xây dựng 4 tầng, có diện tích 105 – 120 m2, được bao quanh bởi không gian xanh.
Liền kề Hado Charm Villas có 171 căn.
- Diện tích đất: Từ 105m2 – 120m2
- Diện Tích xây dựng: Từ 260 đến 300m2
- Hoàn thiện: Xây dựng hoàn thiện mặt ngoài, bàn giao thô bên trong


GIÁ BÁN VÀ TIẾN ĐỘ THANH TOÁN
Giá bán biệt thự Hado Charm Villas : Liên Hệ 0963330009
Giá bán liền kề Hado Charm Villas : Liên Hệ 0963330009
Tiến độ thanh toán dự án
- Đợt 1: Thanh toán 30% khi ký HĐMB
- Đợt 2: Thanh toán 15% khi xây xong phần khung
- Đợt 3: Thanh toán 15% khi hoàn thiện xong phần tường
- Đợt 4: Thanh toán 10% Khi hoàn thiện hạ tầng điện nước
- Đợt 5: Thanh toán 25% khi có thông báo bàn giao nhà
- Đợt 6: Thanh toán 5% cấp Sổ đỏ

Thông tin chi tiết dự án Hà Đô Charm Villas quý khách liên hệ: Chuyên Gia BĐS – Cao Miinh Thành 0963330009
https://batdongsanvietnamdttd.com/ha-do-charm-villas/

ĐĂNG KÝ MUA HOẶC NHẬN THÔNG TIN VỀ DỰ ÁN